× Zoomed Image

Armadio a specchio Alterna karat LED Bianco Colore della luce bianca neutro 4000 K

Numero dell'articolo 5113 161.100.103
Numero dell'articolo 5113 161.100.103
Questo prodotto è disponibile solo presso i rivenditori specializzati
CHF 1'396.65
Prezzo indicativo non vincolante


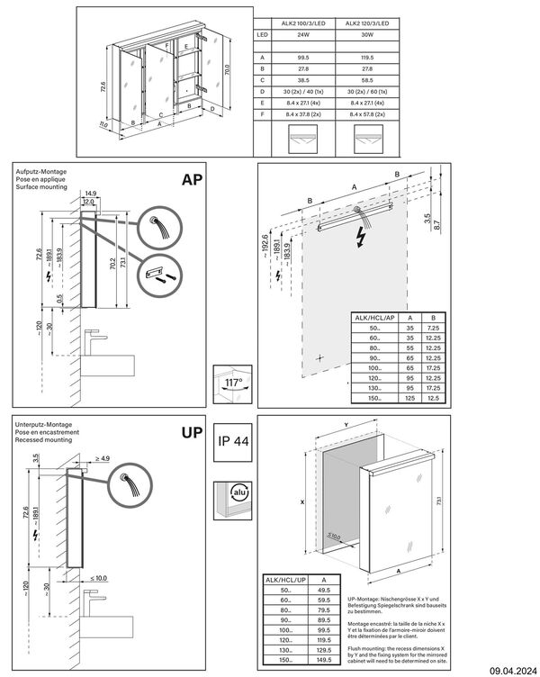
Armadio a specchio Alterna karat LED, larghezza 119,5 cm (30/60/30), 30 W, 2 prese, altezza 73,1 cm, profondità 12/14,9 cm, 3 porte a doppio specchio, porta al centro cerniere a sinistra, illuminazione LED in alto, dimmerabile, IP 44, 2 prese elettriche doppie in basso nella parete divisoria, profilo in alluminio
Armadio a specchio Alterna karat LED, larghezza 119,5 cm (30/60/30), 30 W, 2 prese, altezza 73,1 cm, profondità 12/14,9 cm, 3 porte a doppio specchio, porta al centro cerniere a sinistra, illuminazione LED in alto, dimmerabile, IP 44, 2 prese elettriche doppie in basso nella parete divisoria, profilo in alluminio


Marche
Alterna

Produktlinie IT
karat LED

forma
rettangolare

con meccanismo di chiusura morbida
No

larghezza
1195.0 mm

profondità
149.0 mm

altezza
731.0 mm

modo di montaggio
apparente/incassato

classe di efficienza energetica
C

scontro porta
sinistra/sinistra/destra